"Talga" – Prime Grazing Country with Water Security & Scenic Views - 295.6ha approx.

Welcome to "Talga", a rare offering in the tightly held Barigan district of Mudgee, spanning approximately 295.6ha of diverse and productive country. With around 121 ha of rich creek flats and open grazing land, the balance rises to timbered hills with breathtaking escarpment views, offering both productivity and natural beauty.

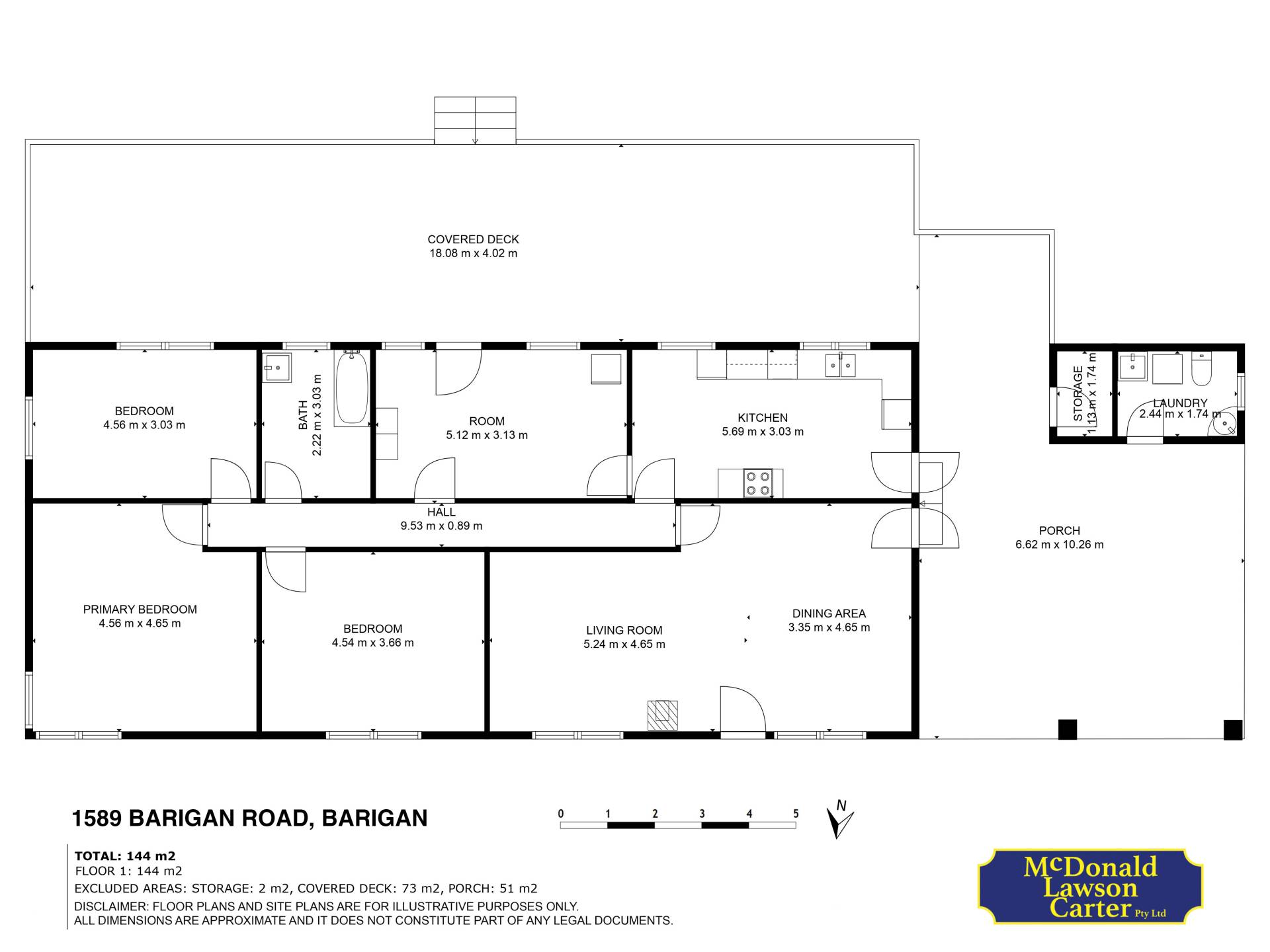
The property boasts a generously sized three-bedroom home, featuring timber floorboards, electrical appliances, a slow combustion fireplace, and a huge verandah – perfect for soaking in the serene rural outlook.

Water security is a standout, with a 90-megalitre aquifer licence for irrigation and stock/domestic use, Barigan Creek and Horse Gully frontage, and complemented by 5 dams scattered across the property.

The vendor has traditionally ran 50 cows and 50 calves conservatively, ideal home sites for subdivision or tourism opportunities (STCA), biodiversity and offset generation potential (Preliminary only and subject to formal investigations).

Infrastructure includes a 16m x 8m machinery/hay shed, a 24m x 6m (8-bay) multi-purpose shed, and wooden cattle yards ready for livestock handling.

Whether you’re expanding your agricultural portfolio or seeking a lifestyle change with space, water, and views – “Talga” is an exceptional opportunity not to be missed.

DISCLAIMER: The above information has been provided to us by the Vendor. While all care has been taken, we do not warrant its accuracy and encourage all interested parties to conduct their own enquiries.

3 1 295.60 ha
Address 1589 Barigan Rd, Barigan
Price $1,300,000 - $1,350,000
Property Type Rural
Property ID 197
Land Area 295.60 ha

Agent Details

Tyler Lawson photo

Tyler Lawson

0448 862 659
View Profile